แบบบ้านชั้นเดียวเป็นที่สนใจของคนไทย เนื่องจากสังคมไทยเป็นสังคมผู้สูงอายุ การอยู่อาศัยบนพื้นที่ชั้นเดียว เป็นที่นิยมมาตั้งแต่อดีต โดยเฉพาะแบบบ้านชั้นเดียว ราคาประหยัด งบตั้งแต่ 300,000 - 2 ล้านบาท ซึ่งเป็นงบที่อยู่อาศัยในใจของใครหลายๆ คน มาดูอัปเดตแบบบ้านชั้นเดียว พร้อมราคาก่อสร้าง ได้ที่นี่

รวมแบบบ้านชั้นเดียวใหม่ล่าสุด 2021-2022

1. แบบบ้านชั้นเดียวราคาประหยัดจาก Siamplan งบราคาก่อสร้างเริ่มต้น 390,000 บาท

Siamplan เป็นบริษัทเขียนแบบที่แจกแบบบ้านชั้นเดียวให้แก่ผู้สนใจได้ดาวน์โหลดไปก่อสร้างตามงบประมาณของตัวเอง โดยเริ่มต้นพื้นที่ใช้สอย 39 ตารางเมตร โดยมีชื่อแบบบ้านที่น่าสนใจ เช่น แบบบ้านอยู่สุขสบาย, แบบบ้านได้สบายใจ, แบบบ้านอยู่ดีมีแฮง, แบบบ้านอยู่นำได๋บ่, แบบบ้านอยู่ฟินเลย, แบบบ้านอยู่ในประเทศ, แบบบ้านอยู่เมาะๆ แมะๆ, แบบบ้านอยู่ตะมุตะมิ, แบบบ้านยู่เคียงข้างกัน, แบบบ้านอยู่แบบยั่งยืน, แบบบ้านอยู่แล้วดีใจ, แบบบ้านอยู่สบายๆ, แบบบ้านอยู่ครบครัน และแบบบ้านอยู่ดีกินดี

...

ดาวน์โหลดแบบบ้านชั้นเดียว Siamplan ได้ที่นี่

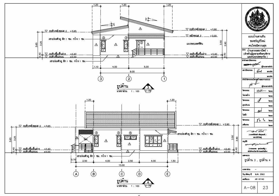
2. แบบบ้านชั้นเดียวราคาประหยัดจากการเคหะแห่งชาติ งบก่อสร้างเริ่มต้น 500,000 บาท

การเคหะแห่งชาติแจกแบบบ้านผู้สูงอายุงบก่อสร้างไม่เกิน 500,000 บาท และ 1,500,000 บาท ไม่รวมค่าที่ดิน โดยแบ่งออกเป็นแบบบ้านที่มีพื้นที่ใช้สอยจำกัด และบ้านชั้นเดียวที่มีหลายๆ ห้อง มีชื่อแบบบ้านน่ารักๆ เช่น บ้านล้อมสวน, บ้าน House of Light และ Unity House

ดาวน์โหลดแบบบ้านชั้นเดียวการเคหะแห่งชาติ ได้ที่นี่

3. แบบบ้านชั้นเดียวราคาประหยัดจากสำนักการโยธา กรุงเทพมหานคร งบก่อสร้างเริ่มต้น 500,000 บาท

สำนักการโยธา กรุงเทพมหานคร แจกแบบบ้านให้ดาวน์โหลดไปสร้างได้มามากกว่า 120 แบบ แบบบ้านชั้นเดียวเหมาะสำหรับบ้านที่มีผู้สูงอายุ และผู้ทุพพลภาพ แบบบ้านชั้นเดียวมีชื่อเรียกเป็นชื่อดอกไม้ในวรรณคดี ได้แก่ กรมเขา, กระดุมทอง, กฤษณา, กวักโพธิ์เงิน, กันเกรา, กัลปพฤกษ์ เป็นต้น

ดาวน์โหลดแบบบ้านชั้นเดียวสำนักการโยธา ได้ที่นี่

4. แบบบ้านชั้นเดียวราคาประหยัดจากกรมโยธาธิการและผังเมือง กระทรวงมหาดไทย งบก่อสร้างเริ่มต้น 500,000 บาท

ใครที่มองหาแบบบ้านชั้นเดียวที่มีให้เลือกขนาดของห้อง 1, 2 และ 3 ห้อง เปรียบเทียบในรูปทรงเดียวกัน ลองเข้าไปดูแบบบ้านที่กรมโยธาธิการและผังเมือง กระทรวงมหาดไทย มีตัวอย่างชื่อแบบบ้านชั้นเดียวเก๋ๆ เช่น แบบบ้านสานฝัน, บ้านไทยพอเพียง, บ้านห่วงใยไทยประชาสุขใจ

ดาวน์โหลดแบบบ้านชั้นเดียวกรมโยธาธิการและผังเมือง กระทรวงมหาดไทย ได้ที่นี่

...

5. แบบบ้านรักษ์โลกจากธนาคารอาคารสงเคราะห์ (ธอส.) งบก่อสร้างเริ่มต้น 1,000,000 บาท

แบบบ้านรักษ์โลกจากธนาคารอาคารสงเคราะห์ มี 6 แบบ แบ่งออกเป็นงบก่อสร้างเริ่มต้น 1 ล้าน และ 2 ล้านบาท โดยใช้วัสดุที่ประหยัดพลังงาน รักษ์โลก แนว Eco Design เป็นแบบบ้านชั้นเดียวโมเดิร์นที่เหมาะกับคนรุ่นใหม่ที่อยากได้แบบบ้านที่รักษ์ธรรมชาติ

ดาวน์โหลดแบบบ้านชั้นเดียวสำนักการโยธา ได้ที่นี่

ที่มา : ธนาคารอาคารสงเคราะห์