หากใครมีคอนโดฯ ส่วนตัวที่อัดแน่นไปด้วยของต่างๆ และอยากให้คอนโดฯ เป็นที่ทำงานของตัวเองได้ แต่ไม่รู้จะจัดการอย่างไรให้เข้าที่เข้าทาง วันนี้ ไทยรัฐออนไลน์ ได้มีเทคนิคต่างๆ มาบอกกัน เชื่อเลยว่า จากคอนโดฯ ส่วนตัวของคุณ จะเปลี่ยนไปเป็นสวรรค์ของคนทำงานได้เลยทีเดียว

คอนโดฯ ของดีไซเนอร์และสไตลิสต์สาวสวย คุณดิว – ธันย์ชนก ทิรานนท์ ที่อยู่มาเป็น 10 ปี กับข้าวของที่มีมากมาย เรียกว่าอัดแน่นเต็มทุกพื้นที่ เมื่อถึงเวลาอันสมควรแก่การรีโนเวตแล้ว มาดูกันว่า จะพลิกโฉมออกมาได้สวยบาดใจขนาดไหน

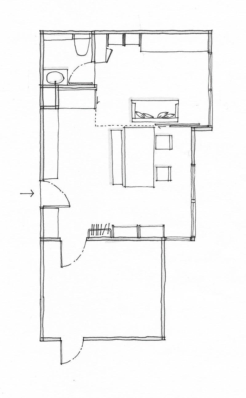
งานนี้ได้ คุณแน็ก – จุติ กลีบบัว เจ้าของบริษัท JUTI architects มาช่วยออกไอเดียเด็ดๆ แบบประหยัด และคุ้มค่าทุกพื้นที่ คอนโดฯ แบบ 2 ห้องนอน ขนาด 36 ตารางเมตร จากเดิม แบ่งเป็นห้องนอนเล็กและห้องนอนใหญ่ พื้นที่นั่งเล่นสำหรับดูทีวีตรงกลาง และมีพี่สาวคุณดิว ที่แวะเวียนมาพักด้วยเป็นครั้งคราว

“แต่ก่อนไม่เคยสนใจเรื่องการแต่งบ้านเลย แค่ไปเรียน ทำงานส่ง พอมาทำงานถึงได้เริ่มสนใจมากขึ้น ด้วยความเป็นดีไซเนอร์ ทำเสื้อผ้าเป็นของตัวเองในยี่ห้อ Thiranont บางครั้งต้องนัดวัดตัวลูกค้า ก็ไม่สามารถนัดมาที่ห้องได้ เพราะห้องของเยอะมาก ไม่มีที่เลย ต้องไปนัดกันข้างนอก ซึ่งไม่สะดวก ทำให้รู้สึกว่าถ้าเราทำห้องให้เป็นกึ่งสตูดิโอเล็กๆ มันก็จะช่วยให้ทำงานได้สะดวกยิ่งขึ้น แถมเป็นภาพลักษณ์ที่ดีกับเราด้วย”

...

ขอเพิ่มและขอเปลี่ยน

• ภาพรวมที่ดูดิบๆ เท่ๆ
• ขอทุบผนังห้องนอนเล็กออกไป อยากให้ห้องกว้างขึ้น
• มุมทำงานที่ใหญ่ขึ้น พร้อมรับหลากหลายฟังก์ชั่น
• ทำหน้าที่เหมือนเป็นสตูดิโอเล็กๆ ใช้รับรองลูกค้าที่มาวัดตัวได้
• ขอพื้นที่เก็บของเยอะๆ ด้วยความเป็นสไตลิสต์ จึงมีข้าวของเยอะมาก
• ของสวยๆ มีเยอะ แต่ไม่เคยได้โชว์เลย
• ทำยังไงให้ข้าวของไปด้วยกันได้


After

เมื่อเปิดประตูเข้ามา จะเจอกับโต๊ะทำงานแบบที่เรียกว่า Universal Table เป็นทั้งโต๊ะทำงาน โต๊ะเย็บผ้า โต๊ะกินข้าว และในอนาคตจะเป็นโต๊ะทำขนมอีกด้วย ผนังก่ออิฐโชว์แนวทาสีขาว ให้ความรู้สึกดิบๆ เข้ากับชั้นวางของที่ทำจากท่อเหล็กสีขาว ฝ้าเพดานห้องถูกเปิดขึ้นไป เพื่อเพิ่มเนื้อที่ในการเก็บของแนวตั้ง

Before

ชั้นวางของติดล้อเลื่อน ทำให้เลื่อนชุดอุปกรณ์การตัดเย็บออกมาใช้งานได้อย่างคล่องตัว

ราวแขวนเสื้อเท่ๆ จากท่อเหล็กตัดกับเสื้อผ้าในสไตล์หวานๆ
ชั้นเก็บของแบบ open shelf ที่ทำล้อมกรอบในส่วนบนสุดของผนัง เพิ่มความสะดวกในการใช้งานด้วยบันไดติดล้อเลื่อน สามารถเลื่อนไปในตำแหน่งที่ต้องการได้อย่างง่ายดาย เพิ่มเหล็กเส้นแนวตั้งยึดระหว่างชั้น เพื่อความแข็งแรงของชั้นเก็บของด้านบน โต๊ะตัวใหญ่ท็อปไม้หิ้งขาโครงเหล็กทำสีสนิม รุ่น Pipe line เข้ากับห้องได้เป็นอย่างดี

...

...

After

ผนังห้องนอนเล็กถูกทุบทิ้ง เพื่อขยายห้องให้ดูกว้างขึ้น และร่นระยะห้องน้ำลง โดยการตัดส่วนที่เป็นอ่างอาบน้ำออกไป ทำให้ได้พื้นที่มุมนั่งเล่นดูทีวีเพิ่มขึ้น การกั้นพื้นที่ด้วยกระจกใส ทำให้ห้องไม่ดูอึดอัด เมื่อมีลูกค้ามาลองเสื้อผ้า จึงสามารถเลื่อนปิดกระจก ให้ความรู้สึกเป็นสัดส่วน และสามารถใช้พื้นที่ทั้งสองส่วนได้พร้อมกัน โดยไม่รบกวนกัน

...


Before


ติดราวแขวนผ้าม่านแบบกลับหัว โดยยึดจากโครงเหล็กด้านบนแทน เพื่อเพิ่มพื้นที่ชั้นเก็บของให้มากที่สุด


สวิตช์ไฟแบบโบราณกับป้ายบอกตำแหน่งแบบง่าย ๆ แต่น่ารัก

กล่องเก็บของที่ใช้เทคนิคสเตนซิลเพื่อแยกหมวดหมู่ ส่วนโคมไฟทำง่ายๆ โดยใช้ท่อพีวีซีมาสวมลงบนไฟดวงเดิม ทั้งประหยัดและดูดี

Before

ชั้นเก็บของ ถอดตู้ของเดิมย้ายตำแหน่ง และทำสีใหม่ให้ดูทันสมัยเข้ากับห้องมากขึ้น


โคมไฟแขวนแบบโบราณ เข้ากับห้องสไตล์นี้ได้เป็นอย่างดี

ขอบคุณข้อมูลจากนิตยสาร my home